长沙城发恒伟置业有限公司 长租公寓招商公告
发布时间:2023-04-26 09:43 打印文件

        一、招商单位:

        长沙城发恒伟置业有限公司

        项目介绍: 长沙城发恒伟置业有限公司下属三家全资子公司,现各自有长租公寓项目,具体信息如下:

image.png

        二、招商区域描述:

        (一)招商区域基本信息:

        1、长沙城发恒晟置业有限公司滨江人才公寓

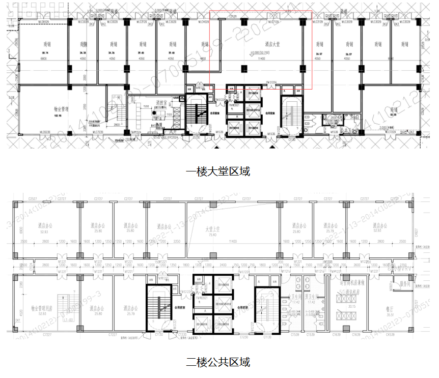
        建筑面积14,605㎡,地下一层为地下停车场;一层大堂区域;二层公共区域,可根据运营需要建为餐厅、会客区、健身房、多媒体影音等;三层至二十一层为客房区域,客房分为60㎡、90㎡或150㎡不等,共计180间。目前已完成楼栋主体建设。

        2、长沙城发恒坤置业有限公司东风映人才公寓

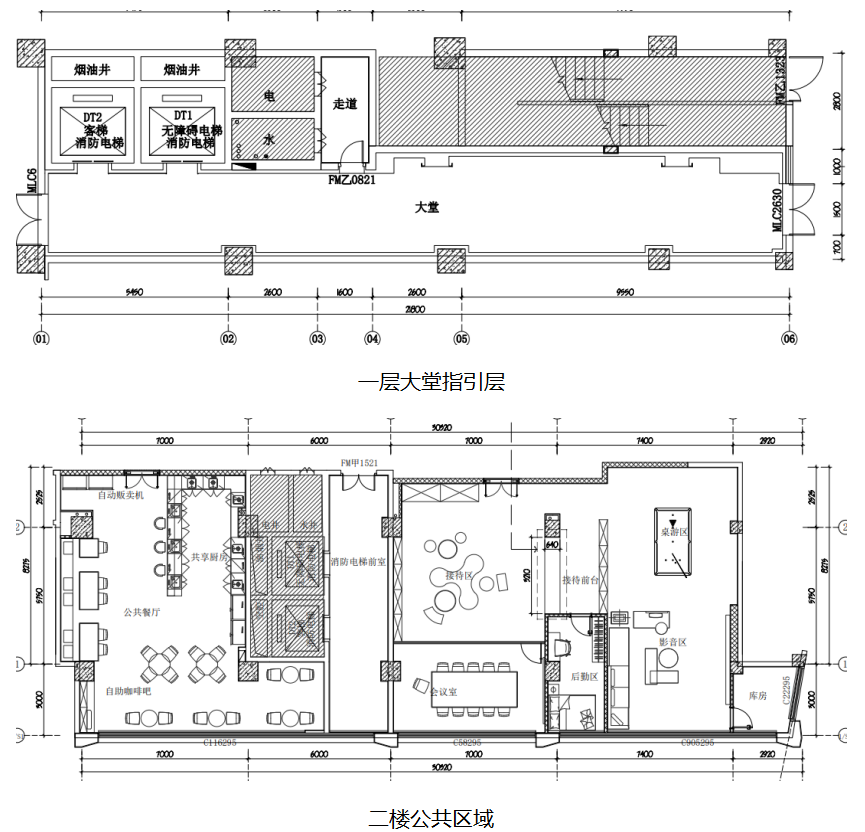
        建筑面积8,263㎡,项目S1栋公寓,一层不设大堂,只保留指引入口,二层公共区域;三层至十四楼为客房层,客房面积从22㎡至42㎡不等,共计176间,目前已完成楼栋主体建设。

        3、长沙恒志房地产开发有限公司洋湖人才公寓(二期)

        建筑面积约17885㎡,为项目5号栋及4号栋内13层,5号栋1层大堂、2层公共区域;3层至12层为平层客房,13层至17层为loft客房区域。共计约458间,目前已完成楼栋主体建设。

        (二)招商户型示意图:

        1、长沙城发恒晟置业有限公司滨江人才公寓

spacer.gif image.pngimage.png

        2、长沙城发恒坤置业有限公司东风映人才公寓

image.pngimage.png

        3、长沙恒志房地产开发有限公司洋湖人才公寓(二期)

image.png

        三、招商简章

        (一)招商对象:具有10年以上服务公寓运营经验的运营商

        (二)招商业种:公寓筹开及运营;

        (三)招商要求:

        1、运营方注册资本超过100万人民币或者等值的其他货币

        2、运营方在全国已签约的项目数量需超过30家(官方网站上有列示)。根据区域经济发展差异,其中中部及西部区域(包括长沙、武汉、成都、重庆、贵阳、南昌、西安),运营项目数量需超过10家(提供签约运营公寓管理合同的首尾页)

        3、运营方所管辖品牌既能运营长短租结合模式的公寓,也能运营纯长租模式的公寓

        4、运营方需能接受管理费用的收取与年度业绩完成比例挂钩的要求

        5、二次装修投入由我司负责,运营方需根据经营定位提供装修标准及经营方案等,项目最终面积及客房数,以实际交付给运营方时的数量为准。

        四、招商联系方式:

        (一)联系人:毛女士 135074880345;

        (二)联系地址:湖南省长沙市岳麓区观沙岭街道茶子山东路112号湘江财富金融中心C座6楼

        五、招商公示期及报名期:

        2023年4月27日起至2023年5月3日下午17:00。

        六、报名有效性说明

        竞选人需在报名截止日前以银行转账汇款形式支付竞

        选保证金各壹万元分别至我司三家子公司账户,视为有效报名。逾期缴纳或未按要求缴纳竞选保证金的,取消竞选资格。

        竞选保证金账户如下:

        (一)、长沙城发恒晟置业有限公司滨江人才公寓

        户  名:长沙城发恒晟置业有限公司

        开户行:中国建设银行股份有限公司长沙曙光中路支行   

        账  号:4305 0186 4036 0000 0303

        (二)、长沙城发恒坤置业有限公司东风映人才公寓

        户  名:长沙城发恒坤置业有限公司

        开户行:东莞银行股份有限公司长沙麓山支行   

        账  号:5190 0001 3114 835

        (三)、长沙恒志房地产开发有限公司洋湖人才公寓(二期)

        户  名:长沙恒志房地产有限公司

        开户行:浦发银行长沙河西支行   

        账  号:6610 0155 0000 0056 8

        七、招商方式

        招商信息发布后在公示期内,可联系招商联系人,领取招商文件,并按文件要求完成资料准备, 报名响应的人选在2个或以上则采取集团招采交易平台(场所)公开招租、进场交易的方式确定运营方,如只有1个报名响应,则以商务谈判方式确定合作条件及运营方。

        八、投诉联系方式:

        1、联系部门:长沙城发恒伟置业有限公司产业协作部(资产);

        2、联系电话:0731-82909321;

        3、联系地址:长沙市岳麓区先导路湘江时代A1座2层。

        九、举报联系方式:

        1、联系部门:长沙城市发展集团有限公司纪检监察室;

        2、联系电话:0731-88797919;

        3、联系地址:长沙市岳麓区先导路湘江时代A1座13A层。  

  

长沙城发恒伟置业有限公司

                      2023年4月24日