恒伟星中心项目食堂招商公告(增补)
发布时间:2025-02-20 10:53 打印文件

一、招商简介

旺铺位置:招商项目位于长沙市岳麓区洋湖生态新城恒伟星中心项目T2栋216,面积2326.29项目紧邻地铁3号线洋湖湿地公园站1号口。

(二)资产情况恒伟星中心项目T2216为食堂,面积:2326.29(最终以产权面积为准),作为写字楼配套设施。

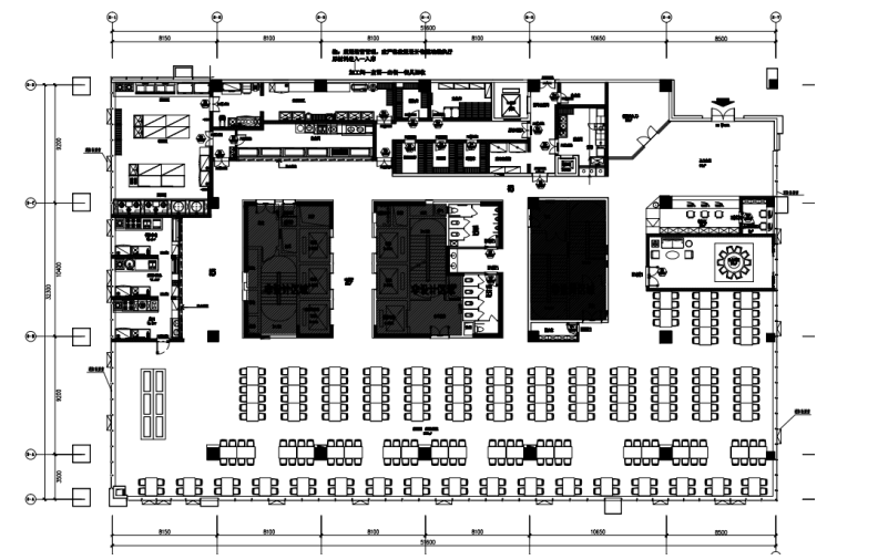
(三)旺铺区位示意图和现状图:

image.png

image.pngimage.png

(四)招商业态及经营模式招选人提供经营场地、基础设施设备和物业服务,中选人自主经营、自负盈亏。中选人按招选人要求提供早餐、中餐、晚餐以及业务接待餐的加工、烹饪

二、竞选资格要求

(一)应选人应为具有先进经营理念,良好经营实力和丰富经营经验的食堂运营方,至少有1家及以上正在存续经营的食堂类餐饮经营场所(需提供合同有效期内现续存经营的食堂经营合同);

(二)应选人具有有效期内的《食品经营许可证》;

(三)应选人应为在中华人民共和国境内注册的企业,并依法取得企业营业执照,且营业执照处于有效期;在国家企业信用信息公示系统中未列入严重违法失信企业名单(黑名单)和经营异常名录内,且近三年内的经营活动在系统中无不良记录;需提供营业执照复印件,国家企业信用信息公示系统中查询截图及无不良记录证明承诺加盖应选人公章。

(四)本次招选不接受联合体应选;

(五)无其他明文禁止参与应选的记录;

(六)单位负责人为同一人或者存在控股、管理关系的不同单位,不得参加同一招选项目应选。

三、竞选商务条件:

(一)商务条件

1.租赁底价:1000元/月(含税),低于此价,报价无效,取消竞选资格;

2.租金计算方式:若月营业额超过25万(含)按实际营业额的3.5%计算租金,若月营业额超过35万(含)按实际营业额的4%计算租金,若月营业额超过45万(含)按实际营业额的5%计算租金,与竞选成交租金两者取其高(要求中选人向招选人开放餐饮管理系统管理员账号,具体要求详见租赁合同);

3.租赁年限:3年;

4.递增方式:无递增;

5.租金缴纳方式:季付;

6.合同履约保证金:10万;

7.物业管理:免物业管理费,但中选人仍应与泓盈城市运营服务集团股份有限公司签订物业服务合同

8.食堂的水、电、气、空调(中央空调在气温28摄氏度以上,10摄氏度以下必须开启保障良好的就餐环境)由乙方承担,食堂现有档口需在1个月内开业率达70%,3个月内开业率达85%。

9.食堂内部超市商品单价不能超过周边便利店正常售价(特价、活动商品除外),否则按出售金额的十倍承担违约金。同时应保证物资充分,上架品类不低于周边便利店70%(具体内容详见租赁合同相关条款)。

10.恒伟公司员工就餐享受8.5折优惠;

11.退出机制:对服务运营商考核实行百分制,分为日常考核(占60%)、专项考核(占40%)两部分。从饭菜质量(20%)、服务态度(15%)、投诉处理(5%)三个层面,对专项考核事项进行考核评价。从供餐、人员、培训、服务、采购、卫生、食品安全、节能、监督9个方面,对服务运营商的日常管理进行考核评价。连续2个季度考核低于50分或年度考核低于70分的,则甲方有权进行无责解约,履约保证金按合同约定退还;

11.中选单位可以在中选后成立全资子公司或分公司运营食堂,但中选单位应承担连带责任;

12.其他条件:整体租赁,未经甲方同意不可分租或转租

(注:上述第2-12小项为固定商务条件,应选人仅对第1项租赁底价进行报价)

(二)其他

1.交付方式:精装交付,应选人已认可资产的现状(包括但不限于该资产本身的国土控规及权证情况、工程物业条件、周边及本身自然物理状况,资产范围内的附属物、添附物、公用设施、配套设施、基础设施等状况,资产周边环境及相邻物业的情况,资产本身法律状况等)。

2.未经甲方同意,禁止转租、分租、联营、合作等行为且参与竞选的经营业态为合同期内最终业态,经营期间,禁止任何形式的业态变更。

3.经营方案、业态定位需符合项目的要求,要求商业逻辑清晰、特色鲜明、个性突出、符合区域人群消费且具有较高品质。

4.参与竞选即视为无条件认可我司的租赁合同模板及条款。

5.特别说明:本次招商竞选不接受联合体参与竞选。中选人在运营期间需每年购买“公众责任险”。

、招商报名方式

(一)报名时间:2025年 02月14日-2025年 02月19日17:30时截止,报名时领取招商文件,逾期不予受理;

(二)报名地址及联系人:长沙市岳麓区星中心营销中心,联系人:徐小姐 13787198855;

(三)报名流程:

1.填写报名登记表,提供加盖应选单位公章的营业执照复印件,领取招商文件。

2.按招商文件要求准备相关资料,招商截止时间前缴纳竞选保证金。应选人需在报名时间截止前(205年 02月14日-2025年 02月19日17:30)向招商单位缴纳,竞选保证金收取标准(见附表1),竞选保证金需以转账汇款形式支付到公司账户。未按要求及时、足额缴纳竞选保证金的,视为不具备竞选资格。竞选保证金账户如下:

户名:长沙恒志房地产开发有限公司                                    

账号: 6610 0155 0000 00568                                       

开户行:浦发银行长沙河西支行

3.如应选人中选,其缴纳的竞选保证金可转为租赁合同履约保证金或租金;如应选人未中选,中选单位与中选人签订合同后15个工作日内无息退还竞选保证金。但发生下列任何情况时,竞选保证金不予退还:

1)应选人在招商报名开始至竞选会议结束期间无正当理由单方面撤回其竞选或修改招商文件的;

2)中选人在取得中选资格后,未在规定期限内签订租赁合同或未按要求缴纳应缴费用的;

3)主动放弃中选资格的应选人,竞选保证金不予退还;

4)应选人采用不正当的手段骗取中选。

(四)应选文件要求:

应选人应按照招商文件要求编制应选文件,由应选人在招商当天递交至评审现场进行评审。

1、应选文件要求包括:

1)应选人营业执照复印件、法人身份证复印件(原件备查)、法人授权委托书、受托人身份证复印件(原件备查);

2)应选方案;

3)报价响应表;

4)所有提交资料需加盖公章和骑缝章;

5)竞选保证金缴纳凭证;

6)本招商文件中涉及评审的其他相关材料。

注:法人无法参与现场本次招商的,请提供符合要求的授权委托书及受托人身份证明材料。

2.应选文件包括纸质盖章版应选文件贰份,电子版应选文件一份(1个U盘,PDF格式,PDF格式为应选文件盖章后的扫描件)。

3.竞选文件的密封要求,加贴封条,并在封套的封口处加盖应选人单位公章。

       3.1应选文件的密封袋封套上按以下标识:

image.png

3.2应选文件的递交:

1)应选人应在招选公告规定的应选截止时间前递交应选文件。

2)应选人递交应选文件的地点见招选公告。

3)应选人所递交的应选文件不予退还。

4)逾期送达的或者未送达指定地点或未按要求密封应选文件,招选人不予受理。

5)本次招选不接收邮寄的应选文件。

6)在本章规定的应选截止时间前,应选人可以修改或撤回已递交的应选文件,但应以书面形式通知招选人。

7)应选人修改或撤回已递交应选文件的书面通知应提供有明显针对本项目的“修改”或“撤回”字样,并同时加盖应选人单位公章及法定代表人或其授权委托人签署的“修改函”或“撤回函”。招选人收到书面通知后,方可办理“修改”或“撤回”事项。

8)应选人修改或撤回已递交应选文件的书面通知内容为应选文件的组成部分。修改的应选文件应按照本章相应内容的规定进行编制、密封、标记和递交,并标明“修改”字样。

、竞选办法

1.竞选方式:综合评审法,具体评审办法见附件。

1.1本项目评审办法采用 “综合评审法”。评审委员会对满足招商文件实质性要求的应选文件,按照本章规定的评分标准进行打分,并按得分由高到低顺序推荐中选候选人。综合评分相等时,以租赁价格最高的优先。

1.2 评审原则:评委应遵循“公开、公平、公正、科学、择优”的原则。

1.3 评审期间,评审人员应当严格遵守保密规定,不得泄露与评审有关的情况,不得索贿受贿,不得参加影响公正评审的任何活动。

2.评审委员会

2.1评审委员会由招选人依规组建,代表招选人对应选文件进行评审,与应选人有利害关系的人员不得参与本项目的评审工作。评审委员会成员的名单在中选候选人名单公示前应当保密。

2.2 评审委员会的职责主要是:

1)依据招商文件和评审方法,负责本项目的评审工作。

2)对应选文件进行初步评审和详细评审。

3)对评审中发现的问题进行处理与记录。

4)对应选文件进行综合评比并排序。

5)根据评审结果推荐中选候选人。

6)编制和提交书面评审报告。

3.评审标准

3.1 初步评审标准

3.1.1 资格评审标准:见评审报告。

3.1.2 形式及响应性评审标准:见评审报告。

3.2 分值构成与评分标准

3.2.1权数取值表

现场考察权数取值:0.1;

经营方案权数取值:0.3;

服务团队及企业综合实力权数取值:0.4;

应选报价权数取值:0.2。

3.2.2评分标准:见评审报告。

4.评审程序

4.1 由招选人向评审委员会介绍项目情况,代理机构宣布评审纪律。

4.2 初步评审

1)评审委员会了解和熟悉招商文件和应选文件,可以要求应选人对应选文件中的内容作必要的澄清、说明或者纠正;进行资格性、形式及响应性审查;有一项不符合评审标准的,作废标处理。确定不合格应选人和进入详细评审阶段的合格应选人名单。

2)所有的材料以正本为准。

4.3 详细评审

4.3.1 评审委员会按本章第3.2 款规定的量化因素和分值进行打分,并计算出综合评估得分。

1)按本章第3.2.2(1)目规定的评审因素和分值对类似业绩部分计算出得分A;

2)按本章第3.2.2(2)目规定的评审因素和分值对综合实力部分计算出得分B ;

4.3.2 评分分值计算保留小数点后两位,小数点后第三位“四舍五入”。

4.3.3 应选人得分=A+B。

4.4 应选文件的澄清和补正

4.4.1 在评审过程中,评审委员会可以书面形式要求应选人对所提交应选文件中不明确的内容进行书面澄清或说明,或者对细微偏差进行补正。评审委员会不接受应选人主动提出的澄清、说明或补正。

4.4.2 澄清、说明和补正不得改变应选文件的实质性内容(算术性错误修正的除外)。应选人的书面澄清、说明和补正属于应选文件的组成部分。

4.4.3 评审委员会对应选人提交的澄清、说明或补正有疑问的,可以要求应选人进一步澄清、说明或补正,直至满足评审委员会的要求。

4.4.4招选人应当对评审结果进行复核。

5.废标条件

应选文件有下列情形之一的,经评审委员会评审后按废标处理或被否决:

1)应选文件未按招商文件规定签字盖章的;

2)应选文件未按规定的格式编制的,内容不全或关键字迹模糊、无法辨认的;

3)应选人资格条件不符合国家有关规定,不符合招商文件要求的;

4)应选人递交两份或多份内容不同的应选文件的;

5)应选文件载明的应选范围小于招商文件规定的招选范围的;

6)其他未能实质响应招商文件提出的实质性要求和条件的;

7)评审委员会发现应选人以他人的名义应选的;串通应选的;以行贿手段谋取中选或者不如实提供有关情况、文件、证明等资料及以其他弄虚作假方式应选的;

8)在应选过程中有商业贿赂行为的;

9)应选文件与招商文件条款有重大偏离或保留的,法律法规文件规定的其他情形。

、竞选程序

1.应选人携带已编制的资料在规定的时间内签到;

2.找选人公布在招募截止时间前递交应选文件的应选人名称,并点名确认应选人是否派人到场;

3.监委核验各应选人代表的合法身份(核验法定代表人身份证明书或授权委托书及本人身份证);

4.监委及应选人代表检查应选文件的密封情况;

5.当众开标,公布应选人名称、服务周期及其他内容,并记录在案;

6.应选人代表、招选人代表、监委、记录人等有关人员在开标记录上签字确认;(对于竞选资料或证明文件不全的应选人,应现场取消竞选资格。)

7.唱标结束后,主持人通知各应选人进行第二次报价,此二次报价不做强制性要求,应选人可根据实际情况进行报价,由工作人员现场发放二次报价表由应选人现场填写(需出席竞选会议的法人或授权委托人签字并按手印),若应选人放弃二次报价也需要在二次报价单上明确填写放弃二次报价。评审报价已二次报价为准。离开会议现场二次报价视作无效报价。

8.评审结束后主持人当众公布所有应选人综合评审结果,并宣布本次招商竞选过程中综合评分最高者为第一中选候选人。

9公示期满且在整个招选过程中无违法、违纪行为,招选人应当向排名第一的成交候选应选人发出成交确认书。排名第一的成交候选应选人放弃成交资格、因不可抗力提出不能履行合同,或者被查实存在影响招募结果的违法行为等情形,不符合成交条件的,招选人可以按照成交候选应选人名单排序依次确定其他成交候选应选人为成交应选人,也可以重新招选。

、中选结果

中选结果在长沙城市发展集团有限公司招采平台网站、城发恒伟公司公众号、项目商铺现场张贴进行公示,公示期为3个工作日。中选人已阅读并知悉招选文件所有内容(含所有附件及合同模板),应当在公示期满后30天内与招选人签订合同,否则招选人有权没收竞选保证金。

、竞选时间及地点

1.竞选时间:2025年02月27日上午10:00。(暂定,我司将对报名单位予以提前通知。)

2.地点:长沙市岳麓区枫林三路交通综合枢纽西中心T2栋25楼长沙城市发展集团有限公司招采交易平台开标室。

(特别说明:应选人需提前15分钟进入会场进行签到,超过时间未到达竞选现场的,视为应选人放弃竞选资格不再参与本次竞选)  

九、纪律和监督

1.对招选人的纪律要求

招选人不得泄漏招选活动中应当保密的情况和资料,不得与应选人串通损害国家利益、社会公共利益或者他人合法权益。

2.对应选人的纪律要求

2.1 应选人不得相互串通竞标或者与招选人串通招募,不得向招选人行贿谋取成交,不得以他人名义招募或者以其他方式弄虚作假骗取成交;应选人不得以任何方式干扰、影响评审工作。

2.2 应选人在本项目整个招选过程中有隐瞒事实、弄虚作假的行为,或有不按应选文件的要求如实提供有关情况、文件、证明等资料的行为,或有所提供的有关情况、文件、证明等资料与经查实的事实不符的行为,且上述行为对该应选人有利的,按照不合格应选人处理。已被列为成交候选应选人的,取消其成交候选应选人资格。已确定为成交应选人的,依据有关法律法规规章的规定处理。

2.3有下列情形之一的,可认定为围标行为的依据:

1)不同应选人的应选文件内容存在非正常一致的;

2)不同应选人的应选文件有两处及以上错漏之处一致的; 

3)不同应选人的应选文件有两处及以上出现异常一致的或呈规律性变化的;

4)不同应选人的应选文件由同一单位或者同一个人编制的;

5)不同应选人的应选文件载明的项目管理班子成员出现同一人的;

6)不同应选人的应选文件相互混装的;

7)不同应选人委托同一人招募的;

8)其他围标情形。

2.4 经查实应选人存在串通竞标等违法行为的,一定期限内禁止参与本集团所有投标活动;情节严重的移交相关职能部门或公安机关处理。

3.投诉

应选人和其他利害关系人认为本次招选活动违反长沙城市发展集团有限公司相关规定的,有权向长沙城市发展集团有限公司纪检监察室投诉。                       

十、联系方式

1.联系人及联系方式:徐小姐 13787198855 ;

2.联系地址:恒伟星中心T1栋15楼

3.投诉联系方式:

1)联系部门:长沙城发恒伟置业有限公司产业协作部(写字楼);

2)联系电话:0731-88279146;

3)联系地址:恒伟星中心T1栋15楼

4)举报联系方式:

5)联系部门:长沙城市发展集团有限公司纪检监察室;

6)联系电话:0731-88797919;

7)联系地址:长沙市岳麓区先导路湘江时代商务广场A1座13A层。  

十一、发布公告的媒介

1.《长沙城发集团招采交易平台网站》https://erp.csudgroup.com:9982/

2.城发恒伟公司公众号

3.城发租赁小程序;

4.长沙城发集团官网。

十二、监督

本次招选项目监督部门为长沙城市发展集团有限公司纪检监察室,电话 0731—88797919,邮箱:cscfjj@163.com。

注:本项目招商文件获取时间、应选文件递交的截止时间(应选截止时间)及开标时间以发布公告的媒介中公布的时间为准。


附件:恒伟星中心项目食堂招商文件(综合评选).docx